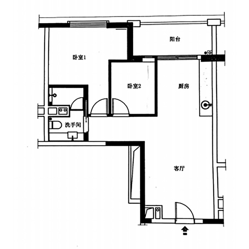
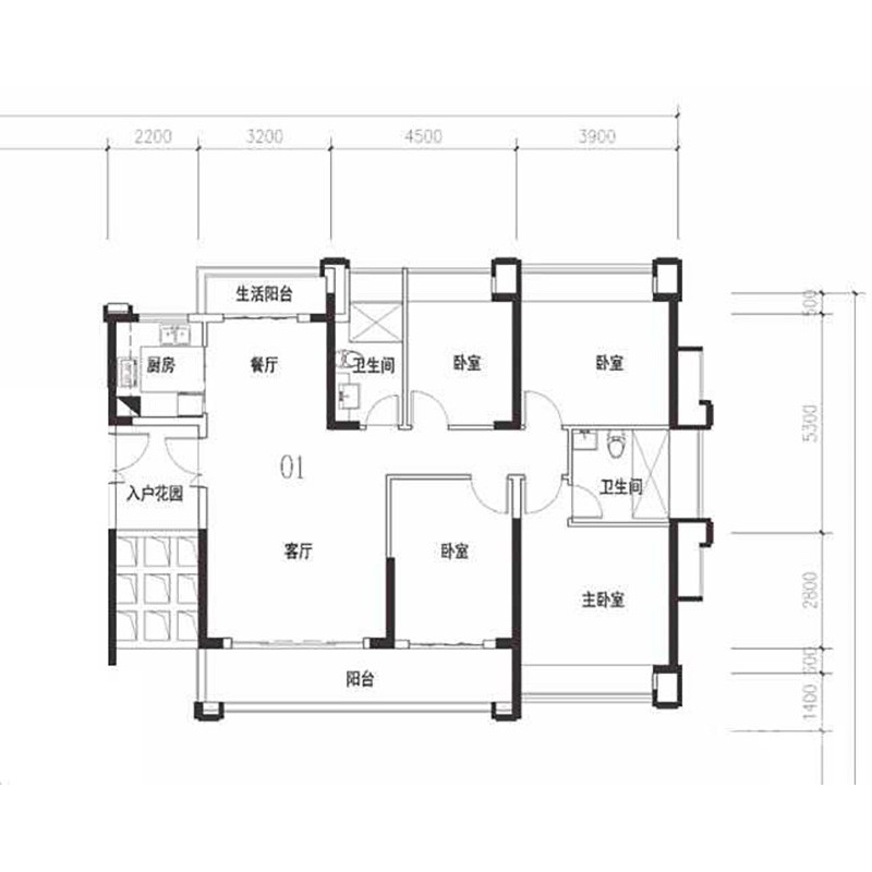
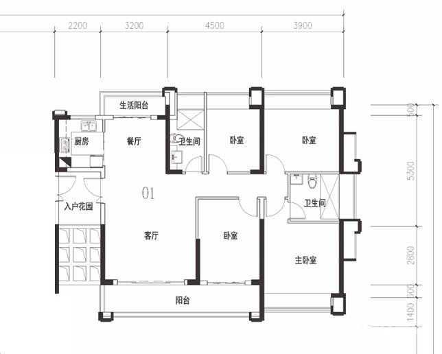
共20000个户型图
最新户型图